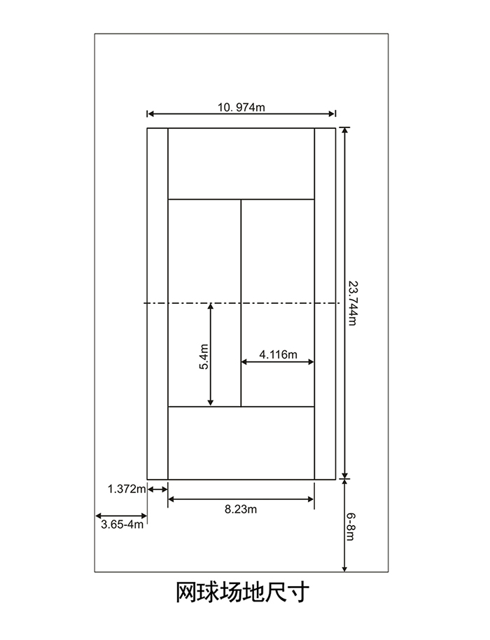
網球場長23.744m,寬10.974m,兩端底線到場邊預留6-8m,兩側邊線預留3.65-4m,網高0.9-1.06m,如下圖1所示。

圖1 網球場場地尺寸
我國網球場照度標準
| 等級 | 使用功能 | 照度(lx) | 照度均勻度 | 光源 | 眩光指數GR | |||||||||
| Eh | Evmai | Evaux | Uh | Uvmai | Uvaux | Ra | Tk(K) | |||||||
| U1 | U2 | U1 | U2 | U1 | U2 | 室外 | 室內 | |||||||
| Ⅰ | 訓練和娛樂活動 | 300 | — | — | — | 0.5 | — | — | — | — | ≥65 | — | ≤55 | ≤35 |
| Ⅱ | 業(yè)余比賽、專業(yè)訓練 | 500/300 | — | — | 0.4/0.3 | 0.6/0.5 | — | — | — | — | ≥65 | ≥4000 | ≤50 | ≤30 |
| Ⅲ | 專業(yè)比賽 | 750/500 | — | — | 0.5/0.4 | 0.7/0.6 | — | — | — | — | ≥65 | ≥4000 | ≤50 | ≤30 |
| Ⅳ | TV轉播國家 | — | 1000/750 | 500 | 0.4 | 0.6 | 0.3 | 0.5 | 0.3 | 0.4 | ≥80 | ≥4000 | ≤50 | ≤30 |
| Ⅴ | — | 1400/1000 | 1000/750 | 0.6/0.5 | 0.8/0.7 | 0.5/0.3 | 0.7/0.5 | 0.3/0.3 | 0.5/0.4 | ≥90 | ≥5500 | ≤50 | ≤30 | |
| Ⅵ | — | 2000/1400 | 1400/1000 | 0.7/0.6 | 0.8/0.8 | 0.6/0.4 | 0.7/0.6 | 0.4/0.3 | 0.6/0.5 | ≥90 | ≥5500 | ≤50 | ≤30 | |
| — | — | 1000/750 | — | 0.5/0.4 | 0.7/0.6 | 0.4/0.3 | 0.6/0.5 | ≥80 | ≥4000 | ≤50 | ≤30 | |||
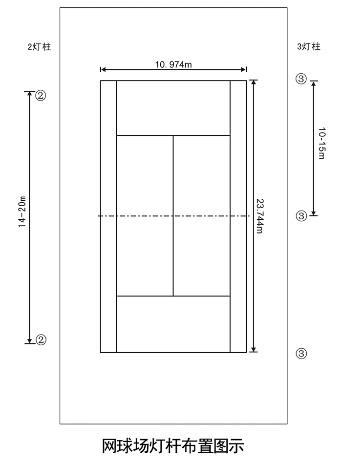
室外網球場布燈方式
室外網球照明一般按下列要求設置:
1.場地兩側采用燈桿側向布燈。
2.沿長軸方向的兩側采用每側2個或3個燈桿位布置。現在正式比賽場地,也有每側采用4個燈桿布置的方案。如下圖2

圖2 網球場燈桿布置圖
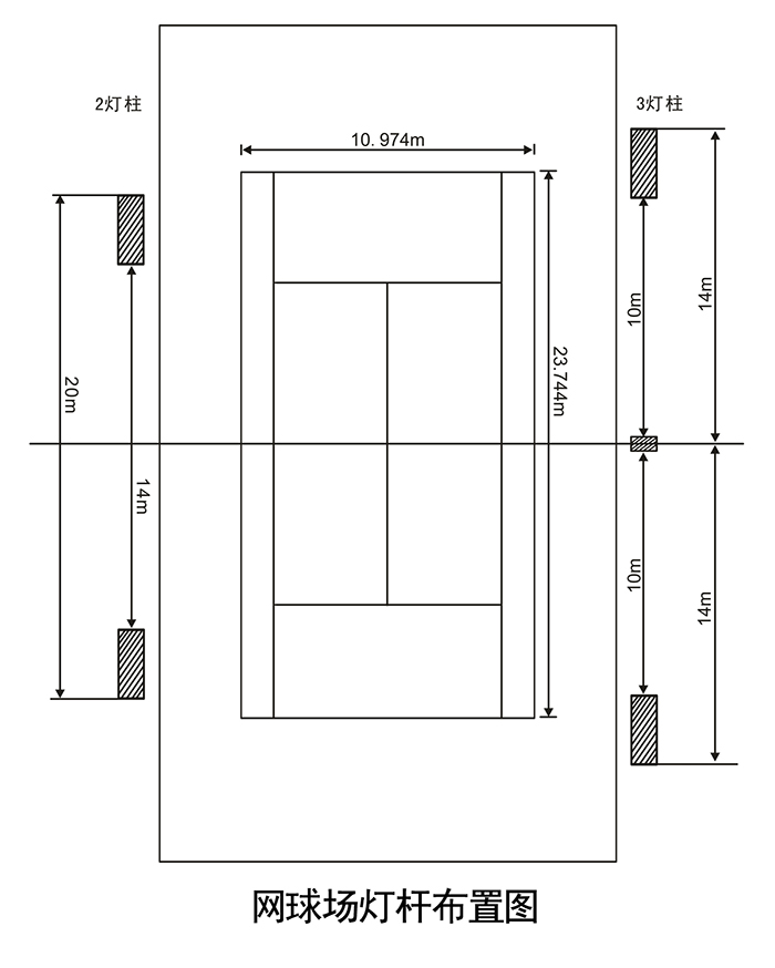
3.用于一般娛樂的網球場,其燈桿安裝高度至少為8m。
4.用于正式比賽的單個網球場地,燈安裝高度至少為12m。如下圖3

圖3 網球場燈桿高度圖
5.如果觀眾席沿場地一側或兩側布置,則照明燈桿應位于觀眾席后面,以避免對觀眾觀看的干擾。
燈桿布置在邊線的外面,每側可以布2個燈桿,也可以設3個燈桿采用(如下圖4)。如果多個場地時,最好不在兩塊場地之間安裝燈桿。如果網球場燈不能準確瞄射,或者光強分布太寬,則照明裝置能在比賽場地外產生失能眩光,就要采用防眩措施或選擇適當光束角的網球場燈。

圖4 網球場布燈位置圖
室內網球場基本上都是使用人工照明。由于室內網球場四周的墻、頂、地面的反射比講影響到照明效果,顏色也會影響到運動員、裁判員和觀眾的視覺效果。根據CIE42技術文件的室內網球場主要表面的反射表如下。
主要表面反射率的推薦值
| 表面類型 | 反射率 | 要求 |
| 頂棚 | >0.6 | 沒有光澤 |
| 墻面 | 0.2-0.6 | 低放射比,兩端可為彩色墻 |
| 地面 | >0.25 | 沒有光澤 |
CIE給出網球場照度標準
| 項目 | 娛樂 | 訓練 | 比賽 |
| 室外場地水平照度值 | — | 300 | 500 |
| 室內場地水平照度值 | 300 | 500 | 750 |
| 水平照度均勻度:Eave/Emin | ≤1.5 | ≤1.5 | ≤1.3 |
室內網球場可以采用天然光(自然光)采光。自然采光的室內網球場只能用于低級別的網球運動,如訓練、全民健身燈。正式的室內網球比賽,不應該采用天然光,采用天然光具有以下要求
1.避免直射陽光;
2.若有直射陽光,應采取措施防止因高亮度區(qū)域對運動員引起的干擾;
3.避免在兩底線后墻上開窗;
4.避免鄰近區(qū)域的天然光進入本區(qū)域;
5.窗戶上裝磨砂玻璃,應保證防眩光;
6.當采用大面積天窗時,要對天窗正確布置和適當遮擋,以獲得可接受的亮度比;
7.當通過屋頂或側墻進入館內的天然光時,必須特別考慮地板的反射問題;
8.一般在充氣機構的網球館中,由于采用低透光率的外殼材料和有較大的面積,可以采用天然采光,天然光通過外殼進入館內。
室內網球場燈布燈方式
網球通常在短距離內高速運動,需要在很短時間內判斷球的運動方向,因此網球需要高的視覺效果,用于正式比賽的室內網球場燈布置應注意不要在PPA(基礎比賽區(qū))上方布置燈具,如果PPA上方有球場照明燈,明亮的光源將會給運動員帶來嚴重的眩光。因此,網球照明燈要置在PPA之外的空間。另外在球網外,燈具的安裝高度不低于9.144m;在底線出,燈具的高度高度應不低于9.096m。
室內網球場一般可在場地兩側較合適位置布置網球場燈,也可以直接在室內的頂棚上安裝燈具,如果采用頂棚布燈方式,頂棚為漫反射頂棚或格棚頂棚,燈光照射在頂棚上然后通過頂棚透光達到照明效果。根據CIE42照度照度室內網球場在娛樂模式時為300lx;訓練模式為500lx;比賽模式為750lx。室內與室外之所以有照度要求差異,原因之一是限制在賽場與周圍環(huán)境的亮度對比。
1.群組布燈
類似于室內籃球場布燈方法,將網球場燈以2或4盞一組形式布置在頂棚,如下平面圖所示。
網球場群組布燈平面圖

群組布燈3D效果

2.區(qū)域布燈(單排布燈)
以網球場兩旁上頂進行布燈,如下圖所示。
單排布燈平面圖

單排布燈3D效果圖

3.馬道布燈

